Luxuriöser Landsitz – auch im Alter.
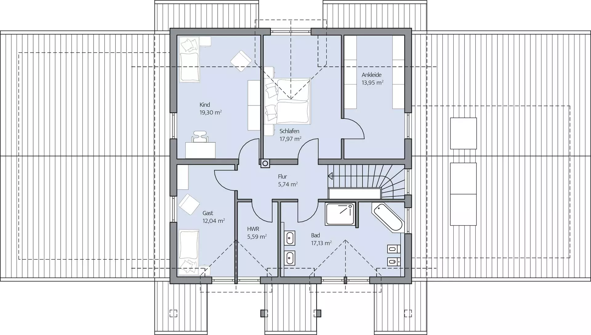
Beeindruckend – das ist vermutlich das erste Wort, das beim Anblick des luxuriösen Landsitzes von Familie Ungermann einfällt. Und das trifft nicht nur auf den großzügigen Pool im weiträumigen Freibereich zu, der zum Baden geradezu einlädt. Der repräsentative Eingangsbereich des Hauses befindet sich unter einem von Säulen gestützten und von Dacherkern flankierten Vordach, der edle Hauptbau wird elegant umrahmt von eingeschossigen Nebengebäuden, die die Garage und zwei Lagerräume sowie die Küche des Hauses umfassen. Schiebetüren verbinden die Küche mit der Diele und dem rund 52 m² großem Ensemble der Wohnräume mit gemütlicher Sitzgruppe und Kachelofen sowie dem Essplatz im verglasten Hauseck mit Fernblick. Ein Gästezimmer sowie ein Gäste-WC mit Dusche gehören ebenso zum Haus und können im Alter bei Bedarf im Sinne von ebenerdigen Wohnen zum Hauptschlafzimmer und -bad umgebaut werden. Im Obergeschoss stehen ein Komfortbad, ein Hauptschlafraum mit separater Ankleide, ein Kinderzimmer, ein Hauswirtschaftsraum sowie ein weiteres Gästezimmer (oder auch Arbeitszimmer) zur Verfügung.
















