Gelungene Symbiose aus nordischer Historie und Moderne.
Das Haus der Familie Christiansen ist wahrlich ein beeindruckender Hingucker: Klar symmetrischer Aufbau, dazu geschmackvoll gewählte changierende Verblendsteine und drei freie Zwerchgiebel mit stilvoll angepassten Fensterflächen. Den individuellen Charakter des Hauses prägen außerdem der seitlich-außen platzierte Schornstein, die Stahlgeländer, optimal im Kontrast zum warmen Stein, sowie die schlichte, aber dadurch umso wirkungsvollere Dacheindeckung in Anthrazit.
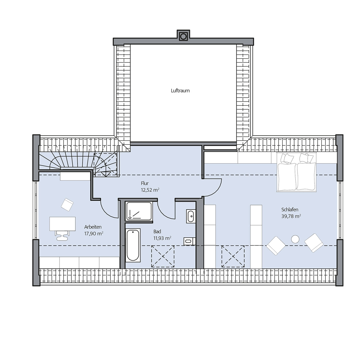
Die klaren, sakral anmutenden Formen spiegeln sich auch im Inneren des Hauses wider. Die Gesamtwohnfläche erstreckt sich hier über insgesamt 274 m² – dazu kommt ein 95 m² großer Kellers – wobei das Herzstück sicherlich der über zweieinhalb Geschosse offene Wohnbereich ist. Elegante Architektur, wie eine Galerie, ein repräsentativer Windfang, eine offene Küche, mehrere Glastüren, das privat gelegene Elternschlafzimmer im Spitzgiebel sowie die großzügigen Kinder- und Badbereiche runden dieses individuelle Haus ab. Beheizt wird es umweltgerecht und hochmodern mit einer Sole-Wasser-Wärmepumpe sowie einer kontrollierten Lüftung mit Wärmerückgewinnung.

















